AT91SAM9G20
AT91SAM9G20是一款与AT91SAM9260针脚兼容的更新换代产品,与上一代产品相比,可提供四倍容量的缓存以及片上SRAM存储器,并具有改进的外部NAND Flash纠错功能以及改善了延迟的增大的以太网FIFO。
制造商:
产品信息
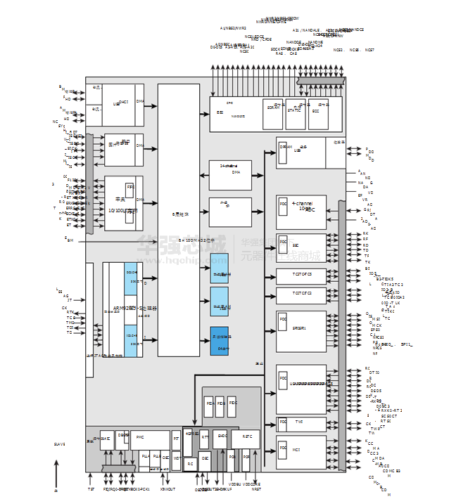
该AT91SAM9G20是基于快速ROM的ARM926EJ - S处理器的集成与RAM存储器和各种外设。
该AT91SAM9G20嵌入了一个以太网MAC ,一个USB设备端口,以及一个USB主机控制 -LER 。它还集成了多种标准外设,如USART , SPI , TWI ,定时器计数器,同步串行控制器, ADC和多媒体卡接口。
该AT91SAM9G20是architectured在6层基质,允许的最大内部带宽六个32位总线。它还拥有一个能够与广泛的接口的外部总线接口范围的存储设备中。
该AT91SAM9G20是AT91SAM9260的增强用相同的圆周为特色的作上。它的引脚对引脚除了电源引脚兼容。速度增大到达到400兆赫的ARM内核和133 MHz的系统总线和EBI上。



